La transformación de este loft en Nueva York estuvo a cargo del estudio de arquitectura Worrell Yeung. Con sede en la gran manzana, esta firma de arquitectura renovó un loft de principios del siglo XX para una pareja de coleccionistas de arte con niños pequeños. Para este proyecto de 205 m2, ubicado en Chelsea, Worrell Yeung contó con la colaboración de Jean Lin de Colony, quien se encargó del diseño interior de la vivienda.
(Imagen superior: En la sala de estar, los tonos tierra juegan con una paleta neutra. El foco visual es el sofá modular de terciopelo granate Mex Cube, diseño de Piero Lissoni que funciona para lados opuestos. Se aprecian la mesa auxiliar Rio y Tabouret y la poltrona Utrecht diseño de Rietveld; todo de Cassina. Fotografía: Eric Petschek, cortesía Worrel Yeung.)
Antes de la transformación del loft

La estrategia de diseño de esta renovación fue mantener zonas contiguas y abiertas en el área social, extender y maximizar la luz del día, reducir las divisiones y concentrar la zona privada en el lado norte del apartamento.

El apartamento ocupa la mitad del piso de un clásico edificio tipo loft de principios del siglo XX. Con el fin de mantener el espíritu de loft de los artistas neoyorquinos, se respetaron los elementos históricos de la construcción. De esta manera, las columnas y vigas de madera y los capiteles de hierro fundido se dejaron al natural y expuestos, especialmente en la generosa sala de estar. Antes de la intervención de Worrell Yeung, el loft lo habían ocupado un artista y un curador de arte del MoMA, y no se había actualizado en casi 40 años.


El área social, que abarca la cocina, el comedor y la sala de estar, está organizada tomando como eje dos muebles de almacenamiento fabricados con madera de fresno oscuro, tratados como mobiliario refinado. Al centro del apartamento se situó un volumen que contiene los baños y otros servicios funcionales.
Antes de la transformación del loft

“Nos inspiramos en los muros de hormigón abujardados realizados por famosos como Paul Rudolph, entre otros. Trabajamos con un artesano local para desarrollar una superficie más suave y texturizada, que crearía una interacción de sombras y luces. Este trabajo arquitectónico contrasta con las piezas elementales más refinadas del apartamento”, dice Max Worrell, cofundador de Worrell Yeung.

Un nuevo loft
La cocina —corazón del loft— cuenta con una monolítica isla de mármol Ceppo di Gre. Worrell Yeung manifiesta su interés en definir el espacio mediante la adición de objetos elementales y distintos. “Hubo un fuerte deseo de expresar la ‘objetividad’ de la isla manteniéndola de forma muy elemental. Así se organizan los planos de piedra para invitar a una cómoda congregación con los nichos cuadrados de piedra que se incrustan en el piso de madera”, dice Jejon Yeung, cofundador de Worrell Yeung. El lenguaje establecido en el diseño de la isla de la cocina también se traslada a la ducha del baño principal, que se define por los volúmenes de mármol oscuro y las paredes del color de la obsidiana.

En el proyecto se usaron pisos antiguos de pino recuperados que hacen juego con la carpintería de madera de fresno pintada de blanco. A lo largo del loft se instalaron paredes deslizantes, que permiten que los espacios se abran para darles continuidad o que se cierren para dar mayor privacidad.

La colaboración de Worrell Yeung con Jean Lin, de Colony, una firma de diseño y práctica curatorial con sede en Nueva York, inspiró el esquema interior del loft. En esta propuesta se conjugan muebles angulares y articulados, tapicería sutilmente estampada, accesorios y objetos escogidos con minucioso detalle.

A lo largo de todo el proceso de diseño ambas firmas describen la relación como excepcionalmente sinérgica y fluida. Worrell Yeung estableció el concepto inicial y Jean Lin trabajó íntimamente con los arquitectos para articular los detalles de la vivienda.
“Dado que no somos un estudio de diseño de interiores tradicional, la forma en que abordamos los interiores nos permite ser ser más colaborativos. Fue realmente agradable tener a Max y Jejon sentando las bases con su intención”.
Jean Lin

«Los diseñadores de interiores a menudo llegan tarde en el proceso de diseño y, a veces, no están necesariamente alineados con nuestras propias intenciones estéticas, por lo que fue una gran y verdadera colaboración».
Max Worrell

El proyecto fue concebido junto con las personas que allí vivirían, tomando en cuenta no solo su estilo de vida sino también el lugar. Por esta razón el diseño interior del loft refleja simultáneamente el diseño arquitectónico del espacio, la familia para la que fue construido y las interacciones cotidianas de ambos. Los elementos arquitectónicos le dan al loft una sensación de apertura y fluidez, al tiempo que crean una privacidad sin pretensiones donde es necesario.

La colección de arte de los propietarios —audaces abstracciones y deslumbrantes pinturas y dibujos figurativos de artistas como Paula Rego y William Kentridge— acentúa estas características. “El diseño y los materiales seleccionados para la casa reflejan el gusto y el estilo de vida del cliente y complementan su ecléctica colección de arte”, dice Worrell.
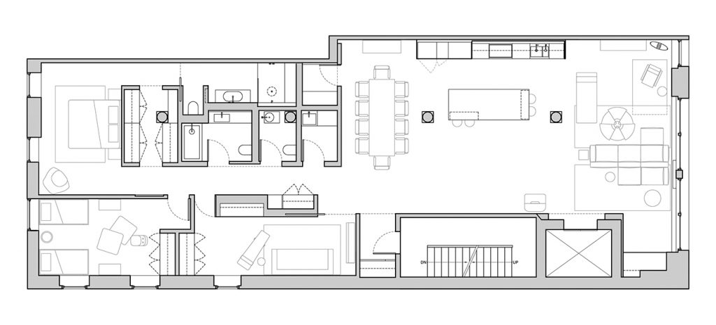
PLANO

http://www.worrellyeung.com
https://goodcolony.com/about/